Dom roka 2020 – kategória: Individuálne domy

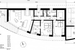
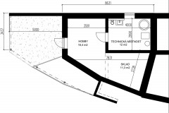
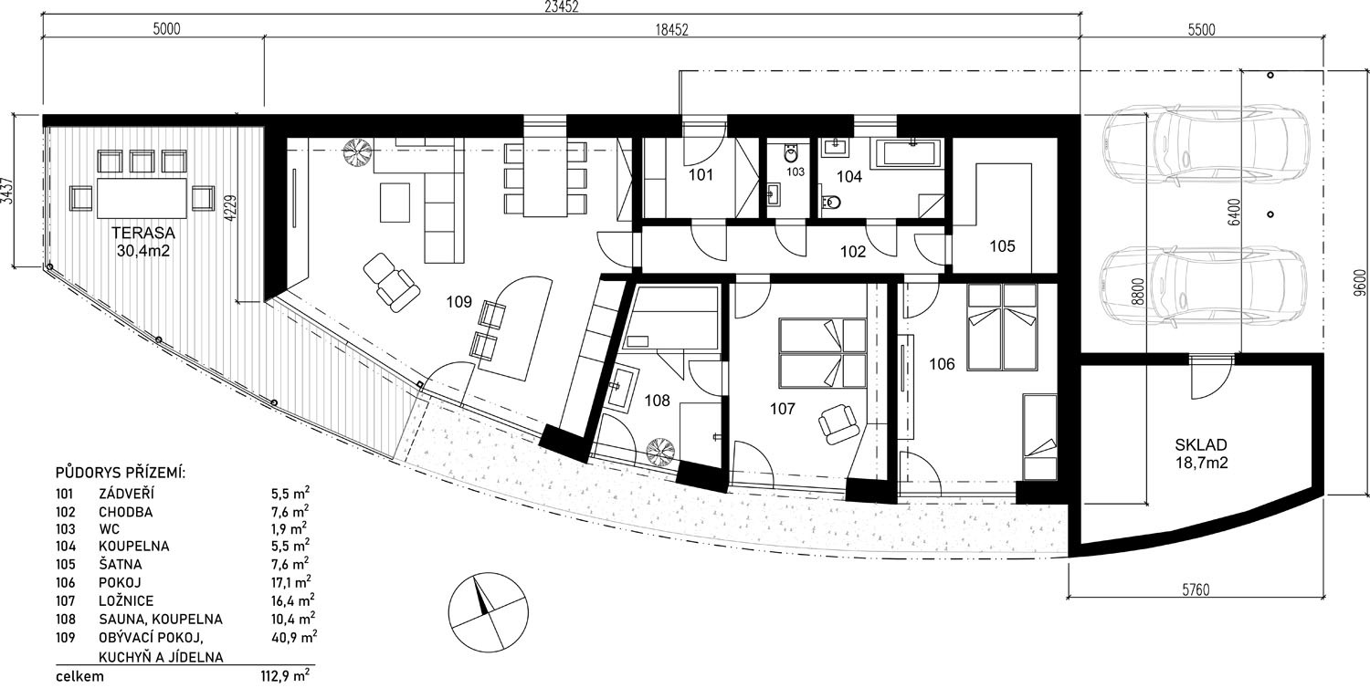
„Zelený“ tehlový dom s rozsiahlymi zasklenými plochami. Do oblúka prehnutá krivka celej južnej strany ho vťahuje do okolitej krajiny a poskytuje výhľady na tri svetové strany. Pretiahnutý obdĺžnikový pozemok, ktorý má na šírku sotva 16 metrov, inšpiroval architekta k atypickému objektu v tvare prehnutého luku, vďaka ktorému nemajú obyvatelia domu výhľady len ploché, ale doslova trojrozmerné. Celá južná stena domu je oblúková, najväčšiu dynamiku zaoblenia dosahuje oblúk v obývacej izbe.

Súvisiace články

Comments are closed.