Dom roka 2021 – kategória Individuálne domy

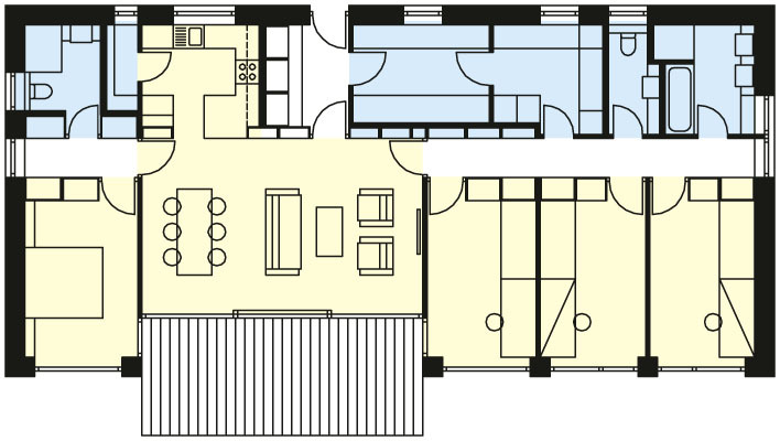
Jednoduchá prízemná stavba je úplne obrátená do záhrady, mierne zníženej oproti úrovni ulice. Medzi okolitou zástavbou nie je takmer vidieť a ponúka príjemné súkromie. Aby nebol narušený jednoduchý kompaktný tvar, čiastočne terasu tieni len ľahká plachta. Dom má technologicky nepríliš náročný konštrukčný systém z dierovaných tehál s vonkajším kontaktným zateplením a stropom z predpätých panelov, energetickú úspornosť stavby zvyšuje riadené vetranie s rekuperáciou tepla. Základom úspornosti je jednoduchá a prehľadná dispozícia, ktorá maximálne využíva zastavanú plochu. Dom v tvare kvádra je pozdĺžnou chodbou rozdelený na severný trakt s hospodárskymi priestormi (zádverie, šatne, kúpeľne, WC a kuchyňa), obytné miestnosti sú orientované na juh. Francúzske okná na každom konci zaisťujú prirodzené denné osvetlenie, prepojenie so záhradou aj pozdĺžne prevetranie stavby. Farebná kombinácia je inšpirovaná 30. rokmi 20. storočia, rovnako ako racionálne usporiadanie celého domu. Modrobiela farebná kombinácia sa opakuje aj v interiéri, ktorý bol z prevažnej časti vyrobený na zákazku podľa návrhu architektov.




